パーティションを探す
ドア:特殊建具
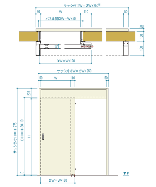
自閉装置付引戸 防火設備タイプ(適合品)
耐火壁にレール直付け式のスチール製スライドドアです。防火設備(6.8mm網入りガラス窓付・窓無し)もしくは特定防火設備(窓無し)として使用できます。(ただし事前に行政機関への適合性のご確認を推奨します)片引き・両引きにも対応可能です。
※サニタリーカバー(傾斜カバー)はオプションとなります
特定防火設備と防火設備
防火設備とは防火戸やドレンチャー(消火設備の一種)など、火災が起きた時に炎が回るのを防ぐための設備の総称です。 防火設備には、特定防火設備と防火設備の2種類があり、防火戸にも特定防火設備と防火設備があります。









