パーティションを探す
安全対策:ケガ防止(指詰め防止)
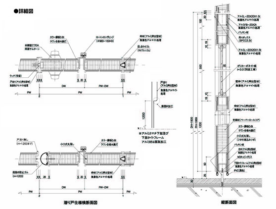
■潜り戸に指詰め防止仕様で安全対策 SSW-50/60
※オプション
■幼児の指を傷つけない安心設計の潜り戸です。
育児スペースの多様化により、自在に部屋を仕切る移動間仕切は保育園・幼稚園には欠かせません。
そして部屋を行き来する潜り戸には、幼児が指を挟んで怪我をすることのないよう、指詰め防止仕様の間仕切で安全対策を講じたいものです。
ご利用例
■ 幼稚園や保育園のホール等
■ 子供たちの集まる施設やホール等
パーティションを探す
※オプション
■幼児の指を傷つけない安心設計の潜り戸です。
育児スペースの多様化により、自在に部屋を仕切る移動間仕切は保育園・幼稚園には欠かせません。
そして部屋を行き来する潜り戸には、幼児が指を挟んで怪我をすることのないよう、指詰め防止仕様の間仕切で安全対策を講じたいものです。
■ 幼稚園や保育園のホール等
■ 子供たちの集まる施設やホール等