パーティションを探す
ドア:特殊ドア
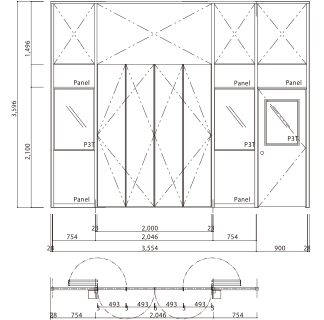
大型装置の搬出入用特殊ドア
アルミパーティション+大型開口用丁番パネル
工場内の製造ラインをパーティションで区分けする場合に大型装置類の出入りを考えて、通常は広く開口が取れる大型ドアや着脱式のマシンハッチ(脱着パネル)を組み込む事例は多数あります。
今回の事例は簡単に着脱できるパネルのご要望に応える形で、丁番パネルを組み入れた仕様でパーティションの設置をいたしました。
標準的な脱着パネルと比較して、簡単な作業で広い開口を作ることができますので、搬出入時の作業時間を大きく改善することが可能になります。
■ユーザー様からの要望
・機械出し入れ後は、精密機械の為、施錠管理をしたい。
・機械を別部署でも使用する為、出し入れを容易にしたい。
・パーティションの納まりを簡易なものにしたい。
※パネル高があり、一枚当たりがかなり重くなる。視界も塞がるので、脱着時に両手でパネルを持って移動するのは危険。

当初は脱着パネルでの計画でしたが、パネルの高さが、PH2500あり、一枚当たりかなり重くなるため、脱着時に両手でパネルを持って移動するのは不安定である事と、視界が塞がってしまうので危険性が増す事。
また、パネルの上下にあるパネル受け用レールの脱着等、作業工程が増える点などを現場調査時に説明。
これらの問題点を考慮し、丁番連結パネルを提案。
それでも吊元のパーティションの支柱にかなりの負担がかかるため『エニファ工法』との併用でパーティションの柱を補強。
閉鎖時はパネル固定用として丸落とし。施錠用に閂錠を採用しました。
「これを作ってほしい」「こういうの作れる?」など、お気軽にご相談ください!

