パーティションを探す
ドア:木製建具
WD/WHD 木製建具
細部にまで行き届いたドア設計、フルオーダーに特化した多彩なドア。
一元管理された生産ラインだから、高品質・ローコストを可能にしました。トータルデザイン&サポートをコンセプトに、他社にないビジネスモデルをご提案します。
木製建具(WD)

ソシアパーティションでは、お客様のご要望に応じて
1点1点木製建具を製作します。
デザインや色など豊富なバリエーションからお選びいただけます。
また、防災対策として、強化ガラスの入った木製建具に変えてはいかがでしょうか?木製建具は、日々の生活に密着した内装ドアです。日頃あまり気にかけませんが、一度不具合になると、最も支障をきたします。当然、震災時の避難路確保としても大事です。
木製ハンガードア

毎日何度も触れるドアだから、
木の風合いにこだわりました。
医療、福祉施設では入居者様に「やさしさ」と「やすらぎ」を提供する事が大切です。弊社の木製ハンガードアはわずかな力で開閉し、床にレールがないので車椅子の出入りもスムーズです。また、自閉装置は残り15cmの隙間からゆっくり閉まるソフトクローズ機能を採用。
尚、当社の木製ドアシリーズは、見る方の目をやすらぐ「木のぬくもり」を重視した表面材を選択出来ます。
※写真は、片引ドアです。
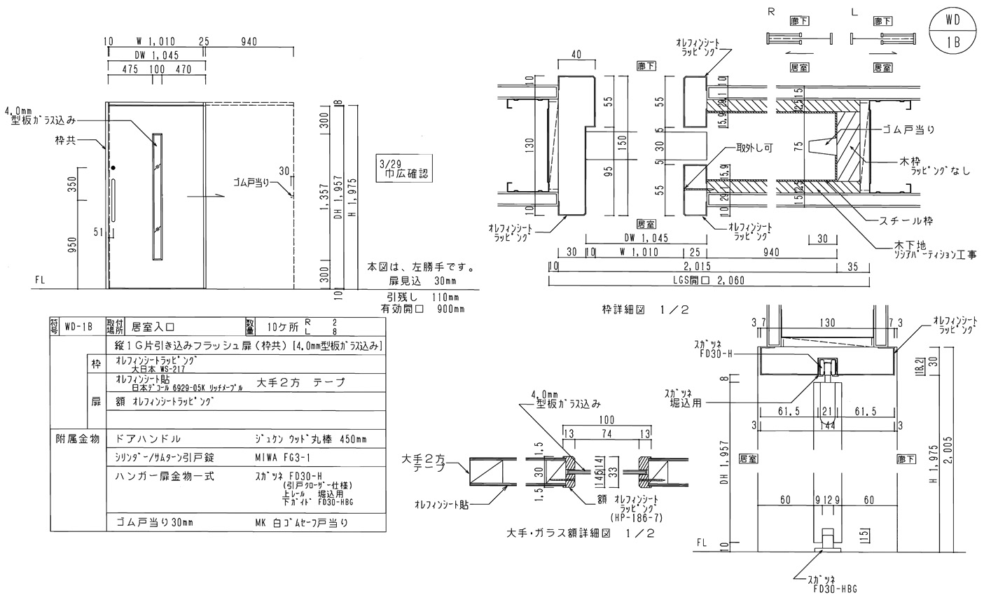
木製ハンガードア 図面
