パーティションを探す
断熱パネル:多目的ドア
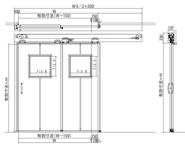
ダブルスライドドア/スライドドア(片引戸)
工場におけるクリーンルームでは、気密性が高い扉を設置する場合が多くなります。室内の気圧を高めることでドアを開閉する際に、外からホコリや粉塵が入ってこなくなります。
ダブルスライドドア
工場内部など限られた狭いスペースにおすすめな引き戸です。このドアは、扉1枚分に2枚分を収納でき、大開口を有効に使えて便利です。手動・自閉・自動からお選びいただけます。
スライドドア(片引戸)
非常に軽量でありながら、クリーン度を保つことができる汎用性のあるスライドドアです。自動・半自動からお選びいただけます。



